1528 SW 53rd Ln, Cape Coral, FL 33914

Home For Sale - $3,399,995




GALLERY

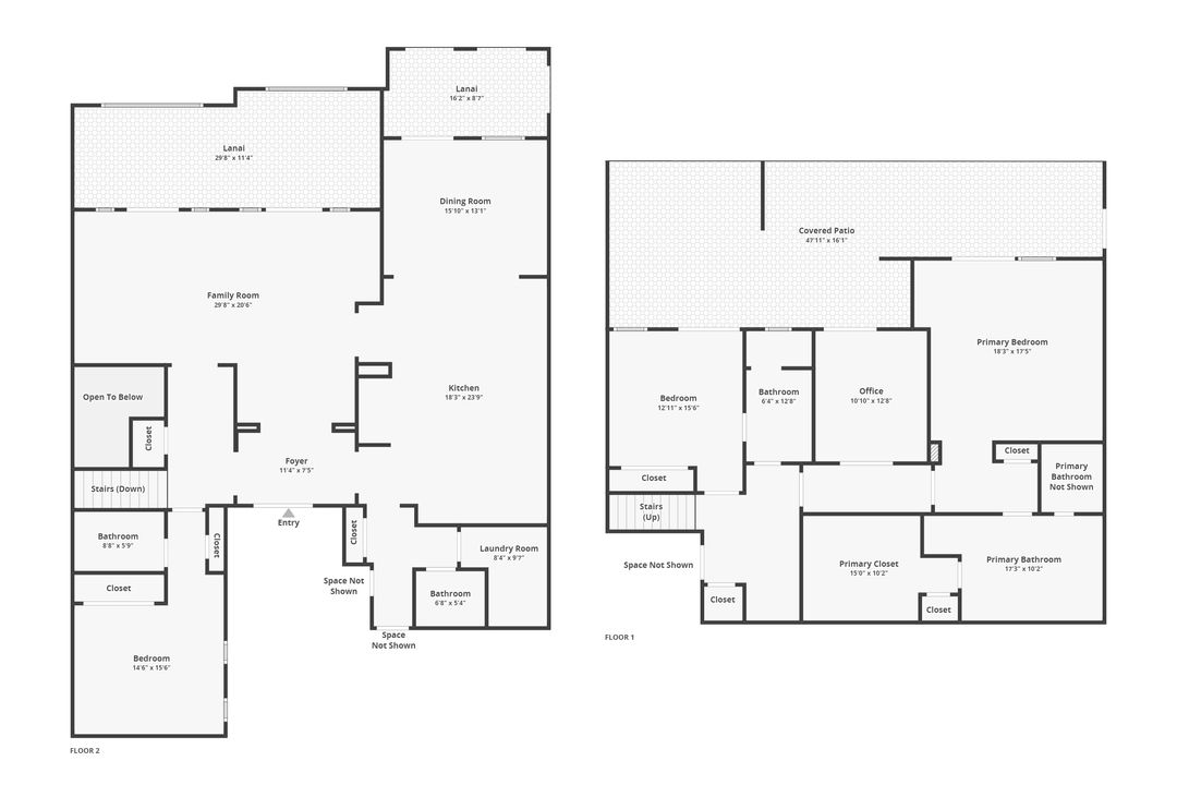
PROPERTY INFO


IN SQ.FT
LIVING AREA

3,749


IN SQ.FT
TOTAL AREA

4,868


NUMBER OF
BEDROOMS

4


NUMBER OF
BATHROOMS

4 Full + 2 Half


PARKING
GARAGE

3


YEAR
BUILT

2023

Other Rooms: Office, Cigar bar, Outdoor Kitchen, Butler Pantry, Cabana


Luxury New Construction Waterfront Home within Walking Distance to Cape Harbour’s Restaurants, Waterfront Shops, and Entertainment.


Professionally Decorated and comes fully furnished by Norris Furniture and Interiors. Featuring 3,749 SF with 4 Bedrooms, Office, 6 Bathrooms ideal for entertaining. Stunning Porcelain Driveway a 3 Car Garage with Modern Impact Glass Garage Doors, and hand selected metal doors welcome you to your Modern Home. Soaring ceilings with designer coffered ceilings, custom lighting, and open an open concept throughout. Entertain guests in the independently ventilated Cigar Bar and Lounge with dual wine coolers, rack for reds, a built-in Humidor, mounted TV, and designer wallpaper and ceiling!


The open kitchen and family room is bright and inviting with imported large format imported porcelain floors, 15' oak coffered ceilings with up-lighting, a back-lit feature wall and fireplace, all this overlooking the pool and 100 foot wide canal beyond. Open kitchen with 12' waterfall island, industrial sink with attachments, and custom skinny shaker cabinetry completed with a Gas Range, Built-in oven & Espresso maker, hidden walk-in butler's pantry! Stunning waterfront master suite with Spa Bathroom equipped with walk-in shower, tub, Toto Smart Toilet, and huge walk-in closet. Each uniquely designed bedroom is a custom e-suite with a private full bathroom and walk-in closet.


The celebrity style pool feels like a waterfront Five Star Resort! Huge natural porcelain lanai with heated pool, infinity edge hot tub, sun shelf, and custom waterfall splashing down! Tons of deck space for sunbathing & entertaining. Even a built-in sunken firepit and waterside sun deck. Completing the outdoor living space with a poolside "Cabana" with backlit feature wall, TV, and pool bathroom. Entertain with a fully stocked outdoor kitchen with composite cabinetry, gill & vent hood, fridge, and icemaker with bar top seating. SOUTH EXPOSURE for the most daytime sunlight on your pool plus views of the sunrise in the East and sunsets in the West.


BOATERS PARADISE - 100 FOOT CANAL - DIRECT BOATING ACCESS



CITY VIDEO



Location